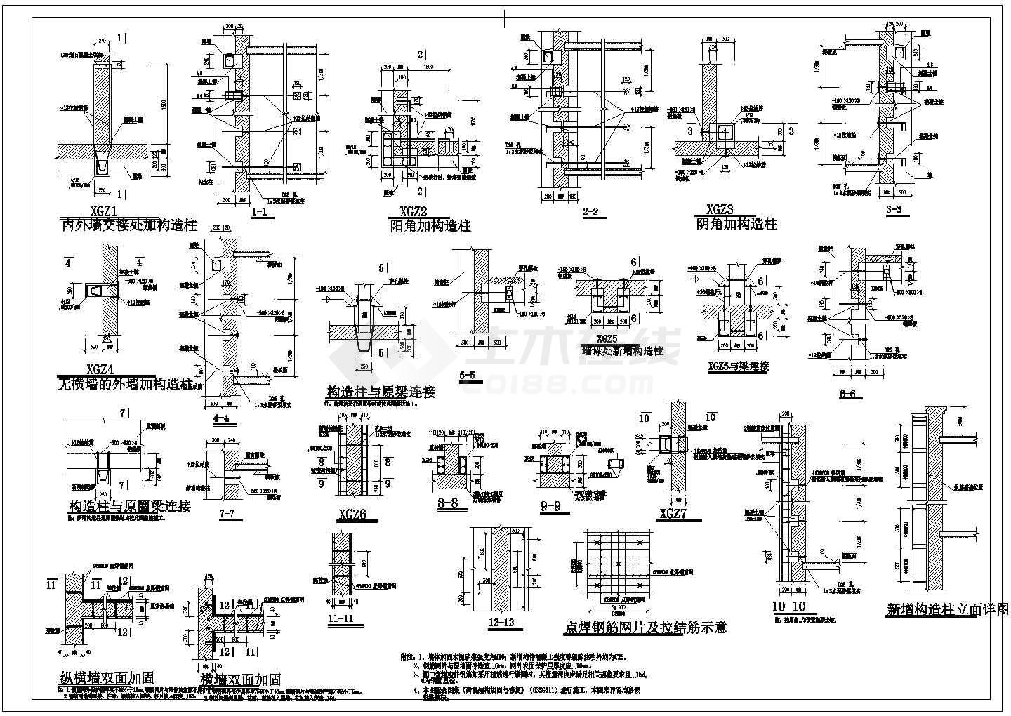
建筑结构加固图片-加固之家,今天小编为大家介绍结构加固中的相关图片和价格
那么关于建筑结构的一般原则是什么呢?如下:

A.加固作中中最好尽可能的采用高强螺栓或者是焊接。
B.在加固作业时一般不能停产或停工,因为一旦挺工就影响到经济来源,导致损失的经济比加固的费用还多。
C.结构等配件制造以及相关的组装最好尽量在生产区以外处去进行。
D.加固作业所订制的方案要方便于房子生活及工作正常进行、方便施工事项等。

建筑结构加固图片及价格?建筑结构加固原本就是一项非常复杂的任务,而且在执行中要考虑到很多的因素。建筑结构加固要遵从的原则一般是,施工便捷,不影响原有的生产,最重要的是高效,价格合理这些方面。
下一篇: 建筑结构加固改造的重要性
返回列表